日立市 | 注文住宅 それぞれの暮らしに寄り添う、シンプルな2世帯住宅

落ち着いたカラーでまとめた、すっきりとした外観の2世帯住宅。
グレー×ホワイトの外壁に、ダークグレーの玄関ドアを合わせ、統一感のある上品でモダンな佇まいに仕上げました。
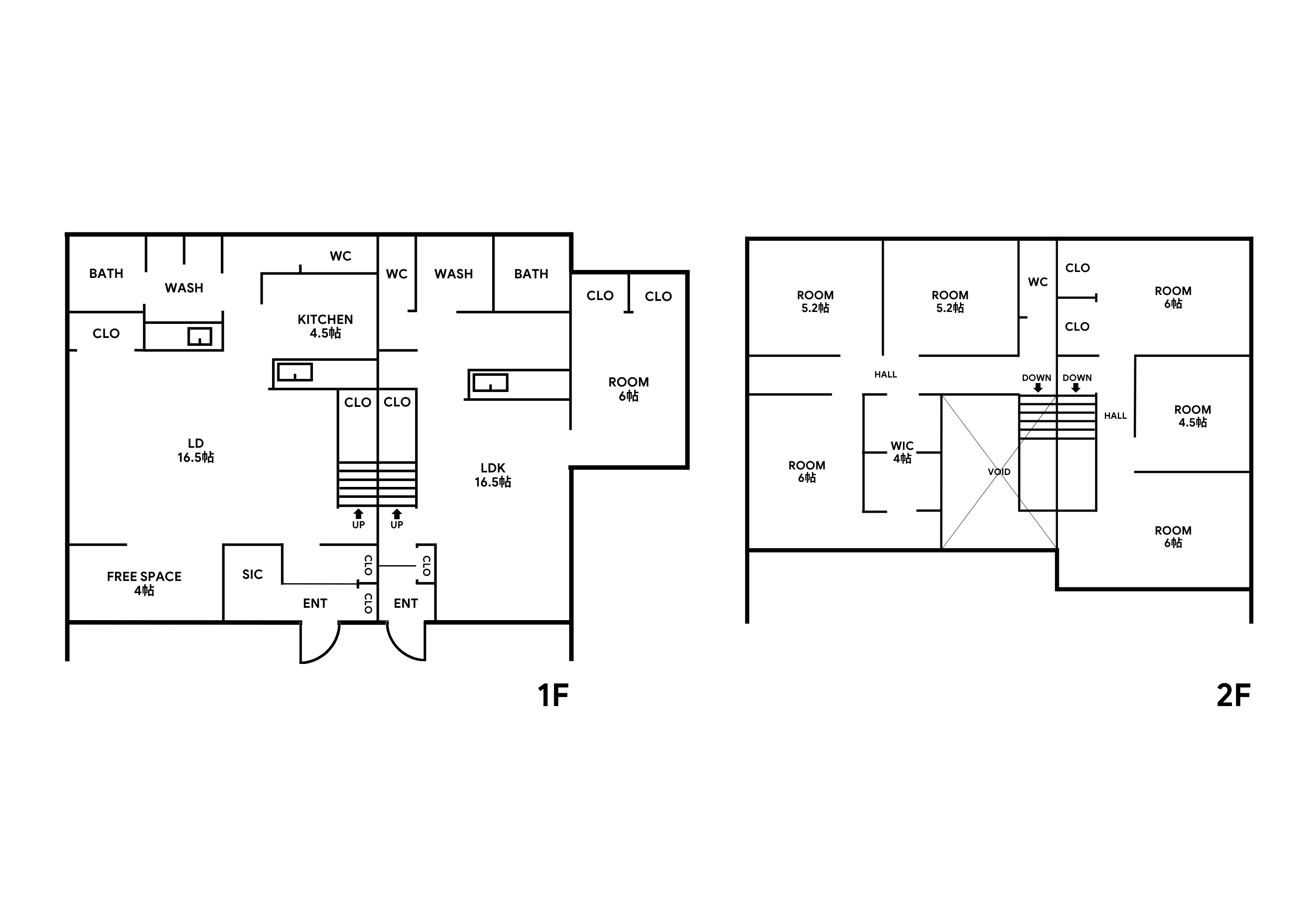
世帯ごとの生活リズムやライフスタイルに合わせ、それぞれが心地よく過ごせるシンプルな間取り
玄関を分けることで、お互いのプライバシーを大切にしながら、必要な距離感でつながる住まいに。無駄を省いた動線と、暮らしやすさを考えた空間づくりにより、毎日の生活が自然と整います。

延床面積 : 202.88 m2 / 61.37坪
1F : 120.07m²(36.32坪) / 2F : 82.81m²(25.05坪)
ご夫婦世帯のリビングには、ゆるやかにつながるマルチスペースを設けました。作業や趣味、在宅ワークに使える小部屋としてはもちろん、お子さまの遊び場や読書スペースなど、多様な使い方ができる、暮らしに寄り添う空間です。


毎日使う場所だからこそ、気分の上がる洗面台に
毎日何度も使う洗面スペースだからこそ、使いやすさとデザインのどちらにもこだわりました。セレクトしたのは、造作家具のような木質感が魅力の TOTO ドレーナ。既製品でありながら、まるでオーダーメイドのような佇まいで、空間にやさしくなじみます。深さのあるシンクは、水はねしにくく、毎日の洗顔や手洗いはもちろん、つけ置き洗いや掃除もしやすい使い勝手の良さが魅力。カウンター横にはオープン棚を設け、タオルや小物をすっきり収納できます。やわらかな色合いのタイルと、壁一面に広がる大きなミラーを組み合わせることで、洗面室全体に明るさと広がりをプラス。シンプルでありながら、毎日使うたびに少し気分が上がる、そんな洗面スペースに仕上がりました。

規格住宅ZERO-CUBE、注文住宅、エクステリアまで幅広く対応🚩”AKARAと創る愛着のある家づくり”がコンセプト。
住むほどに好きになる、あなたらしい暮らしを形に。
対応エリア:那珂市、水戸市、ひたちなか市、日立市、つくば市、東海村、石岡市、土浦市、笠間市、常陸大宮市、那珂市、小美玉市、東茨城郡茨城町、東茨城郡大洗町、東茨城郡城里町
▶施工例やイベント情報などを発信!アカラのInstagramはこちら
▶モデルハウスの見学ご予約はこちら





